string(3) "554"

Циклон ЦН-11-1400-1УП в Владикавказе

Версия
для печати
В наличии на складе Цена в рублях с НДС 361 000
Получите скидку
у менеджера
Цена на циклон ЦН-11-1400-1УП с доставкой от 361 000 рублей с НДС
Производительность циклона, м³/ч13850-22160
Доставка ТК в г. Владикавказ и по России
Безналичный расчет
Опросный лист
Опросный лист
  • Технические
    характеристики
  • Описание
    товара
  • Дополнительно
    потребуется
  • Сертификаты и
    гарантии
  • Отзывы о
    продукции
  • Видео
    обзор
  • базовая модель из листа 4 ст 3
  • возможно изготовление из листов большей толщины и других марок сталей

Технические характеристики циклона ЦН-11-1400-1УП

Тип циклона Циклон ЦН 11
Вид ЦН 11-1400
Марка ЦН-11-1400-1УП
Массовая концентрация пыли в очищаемом газе, не более: для слабослипающихся пылей, г/м³ 1000
Массовая концентрация пыли в очищаемом газе, не более: для среднеслипающихся пылей, г/м³ 250
Температура рабочей среды до, °С 400
Коэффициент гидравлического сопротивления 210
Внутренний диаметр корпуса циклона ЦН, мм 1400
Количество циклонов в группе, шт 1
Площадь сечения цилиндрической части корпуса (группы корпусов), м² 1.54
Скорость, м/с 2.5-4
Рабочее сопротивление, Па 866-2218
Камера очищенных газов Есть
Вид камеры очищенных газов Улитка
Количество камер очищенных газов 1
Вид пылесборного бункера Пирамидальный
Количество пылесборных бункеров, шт 1
Объем пылесборного бункера, м³ 2.09
Размер пылевыгрузного окна бункера, мм 350х350
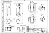
Размеры циклона ЦН (с учетом бункера): длина*ширина*высота, мм 1600х1600х9200
Масса блока циклонов, кг 1310
Бренд KVZR
Производительность циклона, м³/ч от 13850 до 22160

Циклоны ЦН 11 1400 1УП в Владикавказе

Циклоны ЦН 11 1400 1УП используются для очистки аспирационного воздуха, а также для сухой очистки газов и воздуха, выделяющихся при некоторых процессах производства (обжиг, агломерация, сушка, сжигание топлива и т.д.). Пылеуловитель применяется: на предприятиях черной и цветной металлургии, в химической, нефтяной, машиностроительной промышленности, а также пылеуловитель эффективен на предприятиях энергетики, при производстве строительных материалов и т.д.

Циклоны типа ЦН 11 1400 1УП НИИОГАЗ являются самым простым видом пылеуловителей. Важно отметить, что циклоны могут использоваться для безотходного производства, так как некоторые виды пыли, что собраны этим пылеуловителем возможно подвергнуть переработке.

Применение циклонов золоуловителей ЦН-11-1400-1УП не разрешено во взрывоопасных средах; не рекомендуется их применять также для улавливания больших частиц пыли, особенно при небольших диаметрах циклонов. Степень очистки газов с помощью пылеуловителя во многом зависит от размера частиц пыли, чем больше их размеры, тем эффективней очистка.

Циклоны серии ЦН 11 1400х1УП устройство

Циклоны пылеуловители ЦН 11 1400 1УП изготавливают одиночного исполнения. Одиночные циклоны могут быть только с улиткой.

Одиночные циклоны существуют только с вращением "правого" типа.

Бункер циклона ЦН 11 1400х1УП делаются в форме пирамиды.

В технической характеристике представлены значения производительности циклона пылевого ЦН 11 1400 1УП, относящиеся к скорости в цилиндрической части циклона (скорость составляет 2,5 и 4,0 м/с). В обычных условиях нормальной считается скорость 4,0 м/с. Скорость 2,5 м/с лучше всего принимать при работе с абразивной пылью.

В зависимости от температуры вокруг циклона, оборудование производится из углеродистой стали (температура менее -40 °С) и низколегированной стали (при температуре ниже -40 °С).

Конфигурация пылеуловителя рассчитана на температуру до 400 °С и разряжение (относится к давлению) 5(500) кПа (кгс/м2). Циклоны могут закрепляться как на нагнетании, так и на всасывающей линии вентилятора. В зависимости от этого одиночный циклон ЦН 11 1400 1УП выпускается с улиткой на выходе очищенного воздуха или зонтом. При фильтрации воздуха от абразивной пыли, которая вызывает износ крыльчаток вентилятора, циклоны рекомендуется устанавливать перед вентилятором.

Циклон ЦН-11-1400-1УП изготавливается согласно ГОСТ Р 51708-2001.

Принцип работы циклона ЦН 11 1400 1УП

Выделение частиц из воздушной (газовой) среды происходит в основном под воздействием центробежной силы, возникающей при вращении воздушного потока в корпусе аппарата. Запыленный воздух входит в аспирацию циклон ЦН 11 1400 1УП через тангенциальный патрубок и, приобретая вращательное движение, опускается винтообразно вниз вдоль внутренних стенок цилиндра и конуса. Небольшая часть этого потока, в котором сконцентрированы пылевые частицы, движется в непосредственной близости от стенок циклона и поступает через пылеотводящее отверстие в пылесборный бункер, где происходит осаждение и накопление пылевых частиц.

Под пылесборным бункером установлен пылевой затвор. Пылевой затвор служит для периодической или непрерывной разгрузки уловленной пыли из пылесборного бункера.

В центральной зоне циклона воздушный поток, освобожденный от пыли, поднимается винтообразно вверх и удаляется через выхлопную трубу наружу.

Рекомендации по использованию циклонов типа ЦН 11 1400х1УП

Для увеличения срока эксплуатации одиночных циклонов марки ЦН 11 1400х1УП, которые подвергаются абразивному износу, в местах наибольшего износа (во входной и в нижней части корпуса) необходимо приваривать дополнительные листы с наружной стороны стенок циклонов. Циклоны диаметром меньше 800 мм по причине повышенного износа не рекомендуется применять для улавливания абразивной пыли.

При использовании аппарата циклона ЦН-11-1400-1УП должна быть гарантирована непрерывная выгрузка уловленной пыли. При этом уровень пыли в бункерах не должен превышать уровень плоскости, которая отстоит от крышки бункера на 0,5 диаметра циклона.

Условное обозначение циклона ЦН 11 1400 1УП

Ц - обозначение циклона

Н - обозначение конструкции НИИОгаза

11 - наклон входного патрубка относительно горизонтали (угол наклона в градусах)

1400 - обозначается внутренний диаметр цилиндрической части циклона (в мм.);

1 - количество циклонов в группе

У - камера очищенного газа - "улитка"

П - пирамидальная форма бункера

Основные параметры циклона ЦН-11-1400-1УП

  • Температура очищаемого газа, °С не более 400
  • Давление (разрежение), кПа (кгс/м2) не более 5 (500)
  • Массовая концентрация пыли в очищаемом газе, г/м3:

для слабослипающихся пылей не более 1000

для среднеслипающихся пылей 250

  • Коэффициент гидравлического сопротивления:

с "улиткой" - 175;

со сборником - 182;

для одиночных циклонов - 147.

Циклон марки ЦН-11-1400-1УП монтаж

Монтаж циклона золоуловителя ЦН-11-1400-1УП производится согласно проектной документации, необходимо обеспечить беспрепятственный подход к золосливному отверстию пылесборного бункера. При монтаже подводящего газового тракта не допускается резких перегибов газоходов, резких сужений или расширений, что ведет к существенным искажениям пылегазового потока, образованию завалов и потерям давления. Отводящие газоходы приварить к боковым стенкам циклона пылеуловителя ЦН 11 1400 1УП с центрированием по выходным отверстиям.

Подводящие и отводящие газоходы не должны передавать нагрузок на фланцы циклона.

Купить циклон ЦН 11 1400 1УП

Завод изготовитель циклонов предлагает купить циклон ЦН 11 1400 1УП в Владикавказе, для этого вы можете сделать заявку в отдел сбыта по телефону (38-52) 29-97-41 (42), либо оформить заказ онлайн. Наши менеджеры дадут консультацию и рассчитают стоимость доставки до вашего региона и населенного пункта.

Дополнительное вспомогательное оборудование для работы циклона ЦН-11-1400-1УП

Для эффективной и надежной работы циклона ЦН-11-1400-1УП в вашей котельной вам потребуется дополнительное оборудование - затвор-мигалка МГ-300, газоход циклона, постамент циклона.

Цена 17 000 рублей с НДС

Производим газоходы по индивидуальному заказу. Системы газоходов могут включать в себя:

  • шиберы;
  • газоходы различного сечения;
  • переходы;
  • тройники;
  • карманы всасывающие ТДМ.
Цена 30 000 рублей с НДС

Производим постаменты и опоры циклонов по индивидуальному заказу.

Цена 50 000 рублей с НДС

Дополнительные услуги

Сертификат и качество циклона ЦН-11-1400-1УП

Циклоны и золоуловители производства Котельный завод "РЭП" соответствуют строгим стандартам качества и безопасности.

Циклоны имеют декларацию соответствия Техническим регламентам Таможенного союза ТР ТС 010/2011 «О безопасности машин и оборудования».

Промышленный циклон ЦН-11-1400-1УП включен в реестр российских производителей промышленного оборудования Минпромторг и имеют реестровую запись номер № 10729654 от 14.10.2025, сроком действия до 13.10.2028 подтверждающую российское происхождение продукции.

Промышленный циклон ЦН-11-1400-1УП имеет гарантийный срок 24 месяца и срок работы при соблюдении правил монтажа и эксплуатации оборудования 10 лет.

Сертификат для золоуловителей .jpg
Сертификат на золоуловители
Сертификат о происхождении товара форма СТ-1 .jpeg
Сертификат о происхождении товара (форма СТ-1)

Отзывы о продукции

Отзыва о товаре пока нет, будьте первыми!

Циклоны являются наиболее распространенным газоочистным оборудованием. Циклон производит очистку газов в самых различных отраслях промышленности: в черной и цветной металлургии, химической и нефтяной промышленности, промышленности строительных материалов, энергетике и других. При небольших капитальных затратах и эксплуатационных расходах, циклоны в зависимости от характеристик улавливаемой пыли, типа и режима работы обеспечивают эффективность очистки газов и пылеулавливания 80-95 %.

Смотреть видеообзор на

Вопрос-ответ

  • Технические
    характеристики
  • Описание
    товара
  • Дополнительно
    потребуется
  • Сертификаты и
    гарантии
  • Отзывы о
    продукции
  • Видео
    обзор
Документы завода
  • Сертификаты завода
  • Членство в СРО
  • Аттестованная технология сварки
  • Патенты на котельное оборудование
  • Товарные знаки
Смотреть все документы
Сертификат на водогрейные котлы на твердом и жидком топливе
Сертификат на водогрейные котлы на газе и жидком топливе
Сертификат на котлы отопительные паровые КП
Сертификат на топки
Сертификат на щиты управления
Сертификат на скиповые подъемники
Сертификат на золоуловители (циклоны)
Сертификат на конвейеры скребковые
Сертификат на дробилки
Сертификат на клапаны предохранительные
Сертификат на бункер-накопитель механизированный
Сертификат на автоматику газовых горелок
Сертификат о происхождении товара форма СТ-1
Членство в СРО
Членство в СРО
Аттестованная технология сварки
Свидетельство аттестованной технологии сварки
Патент на отопительный котел
Патент на водогрейный котел
Патент на топку водогрейного котла
Патент на водогрейный газовый котел
Патент на водогрейный котел
Патент на топочное устройство твердотопливного котла
Патент на водогрейный котел
HEATEXPERT товарный знак
KVZR товарный знак
STEAMEXPERT товарный знак
Другая похожая продукция
Циклон ЦН-15-1-УП
Производительность циклона, м³/ч10175-16280
280 000 р. Цена с НДС
Циклон ЦН-15-1-УП
Производительность циклона, м³/ч7065-11305
203 000 р. Цена с НДС
Циклон ЦН-15-2-УП
Производительность циклона, м³/ч14130-22610
Цена по запросу
Циклон ЦН-15-6-УП
Производительность циклона, м³/ч42600-67800
Цена по запросу
Циклон ЦН-15-6-УП
Производительность циклона, м³/ч42390-67825
Цена по запросу
Вы просматривали эти товары
Циклон ЦН-15-1-УП
Производительность циклона, м³/ч13850-22160
361 000 р. Цена с НДС
Цена по запросу
Цена по запросу
Цена по запросу
background